Bilocale in vendita

Torino, Via Parenzo - Lucento
€ 79.000
2 locali 2 locali
56 Mq 56 Mq
1 bagno 1 bagno

Bilocale in vendita

Torino, Via Parenzo - Lucento

Descrizione annuncio

POSSIBILITA' DI VENDITA CON AFFITTO A RISCATTO!

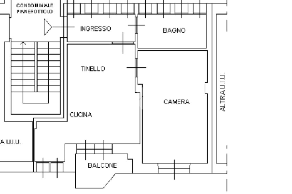
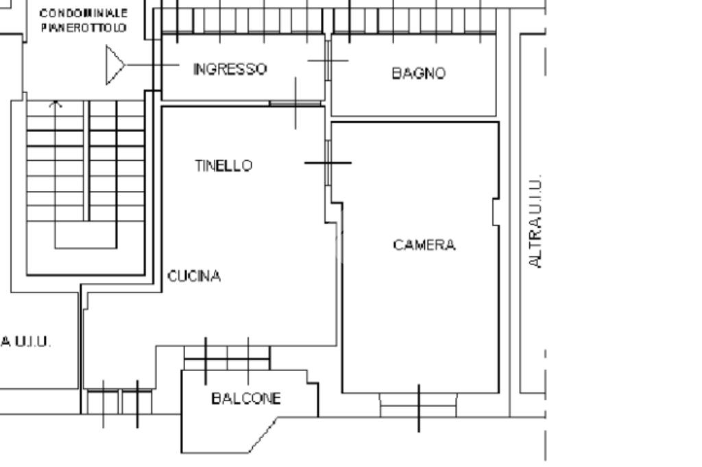
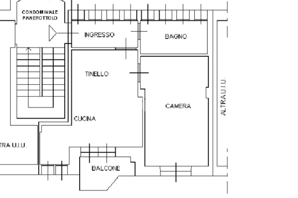
In contesto immerso nel verde condominiale, comodo ai principali servizi della zona tra cui il mercato di Corso Cincinnato e l'Area12, proponiamo ampio bilocale completamente ristrutturato nel 2025.

L'ingresso sfocia sulla luminosa zona giorno a vista ed un cucinino che può essere adibito a zona lavanderia/dispensa, inoltre è presente un balcone con affaccio sul giardino condominale.

La camera da letto è ampia e ben squadrata, il che ne facilita l'arredo ed è dotata di finestra.

Il servizio è finestrato ed è presente il box doccia.

Completa la proprietà una cantina al piano interrato ed un posto auto condominiale.

L'immobile è stato completamente ristrutturato nel 2025 ed è provvisto di tutte le certificazioni.

LIBERO SUBITO!

Mostra tutto

Nelle vicinanze

Trasporto pubblico Trasporto pubblico
Rivoli
Rivoli
2,9 Km
Racconigi
Racconigi
2,9 Km
Madonna di Campagna
Madonna di Campagna
1,6 Km
Torino Rigola - Stadio
Torino Rigola - Stadio
1,9 Km
Cincinnato
Cincinnato
100 m
Ricariche auto elettriche Ricariche auto elettriche
Lidl Altessano
350 m
Bluetorino Stradella
1,9 Km
Bluetorino Risorgimento
2,6 Km
Savonera Villa Cristina | EnelX
2,7 Km
Scuole Scuole
Istituto per il commercio succursale Boselli
430 m
I.T.C. Bertrand Russell
460 m
stituto Alberghiero succursale J.B. Beccari
470 m
Scuola Media Statale Giuseppe Cesare Pola
640 m
Scuola primaria Padre Gemelli
670 m
Farmacia Farmacia
Farmacia
200 m
Sansovino
220 m
Minerva Sas
540 m
Delle Vallette SNC
860 m
Santa Teresa SNC
870 m
Ospedali Ospedali
Amedeo di Savoia
1,9 Km
Ospedale Amedeo di Savoia
2,0 Km
Ospedale Maria Vittoria
2,4 Km
Villa Cristina
2,4 Km
Supermercati Supermercati
Banco Fresco - Torino
270 m
Lidl Strada Altessano
290 m
COOP Corso Molise
600 m
Penny Market
670 m
Docks Market
730 m
Negozi Negozi
L'Acropoli
280 m
El Pan d'na Volta
290 m
Panetteria Alimentari
700 m
RisparmioCasa
760 m
Negozi
890 m
Bar Bar
Vinosteria da Celestino
540 m
Bar
1,1 Km
Bar Tabacchi
1,5 Km
Supermarket
1,8 Km
I 3 Motivi
2,0 Km
Ristoranti Ristoranti
Osteria Rotonda dei Facchinetti
580 m
Ristoro Caffè San Giorgio
700 m
America Graffiti
740 m
IL Leone
770 m
Pizzeria Rotonda dei Facchinetti 2
1,0 Km
Mostra tutto

Caratteristiche

Rif.:
61109615
Piano:
Rialzato di 3
Totale piani:
3
Posti auto:
1
Balconi:
1
Camere da letto:
1
Mostra tutto
Prezzo Prezzo
€ 79.000
Rata mutuo Rata mutuo
€ 351 / mese
Spese annue Spese annue
€ 1.000
Proponi il tuo prezzoProponi il tuo prezzo

Classe Energetica

F
F
F
F
F
F
F
F
F
EP globale non rinnovabile:
310.96 kW h/m² anno
EP globale rinnovabile:
310.96 kW h/m² anno
EP invernale del fabbricato:
EP estiva del fabbricato:
Anno di costruzione:
1950
Riscaldamento:
Centralizzato
Tipo impianto:
A radiatori
Tipo alimentazione:
Metano

Ti interessa visionare l'immobile?

Fissa un appuntamento  Fissa un appuntamento

Richiedi informazioni

* Questi campi sono obbligatori

Calcola il tuo mutuo

Semplice e senza impegno
Anticipo

( % )
Mutuo

( % )

pochi semplici passi

inserisci i tuoi dati
Questionario completato
Grazie per aver richiesto un appuntamento senza impegno con un nostro Consulente del Credito e Assicurativo.

Hai inserito correttamente tutti i dati necessari e a breve riceverai una e-mail con un link da convalidare per inviare i tuoi dati.
Affiliato
Studio Venaria Mdc Sas
Via Venaria, 63/A 10148 Torino (TO)

Il nostro staff


  • Samuele Cancelleri
    Collaboratore

  • Simone Capra
    Affiliato

  • Andreea Bianca Horonceanu
    Collaboratrice

  • Paula Beatrisa Anti
    Coordinatrice

  • Domenico Rubilotta
    Responsabile
Via Venaria, 63/A 10148 Torino (TO)
Zona: MADONNA DI CAMPAGNA-P.ZZA STAMPALIA
Mostra su mappa
Orari: Lunedì - Venerdì h.09-12.30/15.00-20.00 Sabato 09.00-12.30/15.00-17.00
Affiliato
Studio Venaria Mdc Sas
Via Venaria, 63/A 10148 Torino (TO)

2025 Tecnocasa Franchising S.p.A. - P. IVA 08365160152 - Via Monte Bianco 60/A 20089 Rozzano (MI). Ogni agenzia ha un proprio titolare ed è autonoma. Privacy policy | Policy utilizzo | Cookie policy